你有没有想过,那些高大的煤仓里,那些煤炭是如何稳稳当当存放的呢?今天,就让我带你一起揭开煤仓稳料装置的神秘面纱,一起看看那些图纸背后的秘密吧!
一、煤仓稳料装置的“庐山真面目”

首先,你得知道,煤仓稳料装置,顾名思义,就是用来稳定煤炭在煤仓中存放的装置。它通常由多个部分组成,包括支撑结构、稳料层、输送系统等。这些部分协同工作,确保煤炭在煤仓中不会因为重力作用而堆积成山,也不会因为风吹雨打而散落一地。
二、图纸解读指南

那么,如何看懂这些复杂的煤仓稳料装置图纸呢?别急,让我一步步教你。
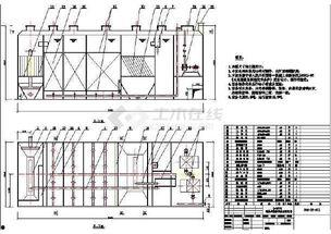
1. 了解图纸类型:煤仓稳料装置图纸通常包括平面图、立面图、剖面图和系统图等。平面图展示的是装置的整体布局,立面图则展示了装置的侧面视图,剖面图则是装置的横截面图,而系统图则展示了各个部分之间的连接关系。
2. 熟悉符号和标注:图纸中会使用各种符号和标注来表示不同的部件和尺寸。比如,矩形框表示支撑结构,圆形表示管道,箭头表示输送方向,数字和字母则表示尺寸和材料。
3. 分析结构布局:通过图纸,你可以清晰地看到支撑结构的形状、尺寸和位置,以及稳料层和输送系统的布局。这些信息对于理解装置的工作原理至关重要。
三、关键部件解析

1. 支撑结构:支撑结构是整个煤仓稳料装置的基础,它需要承受煤炭的重量和外部环境的影响。常见的支撑结构有钢架结构、混凝土结构等。
2. 稳料层:稳料层是放置煤炭的地方,它需要具备一定的稳定性和透气性。常见的稳料层材料有木板、金属网等。
3. 输送系统:输送系统负责将煤炭从煤仓底部输送到指定位置。常见的输送设备有皮带输送机、斗式提升机等。
四、图纸实例分析
以某煤仓稳料装置的平面图为例,我们可以看到:
- 支撑结构采用钢架结构,分布在煤仓四周,形成了一个稳固的框架。
- 稳料层采用金属网,铺设在支撑结构上,形成了一个均匀的煤炭存放面。
- 输送系统由皮带输送机和斗式提升机组成,分别负责将煤炭从煤仓底部输送到煤仓顶部和指定位置。
通过分析这些图纸,我们可以了解到该煤仓稳料装置的工作原理和各个部件之间的关系。
五、
煤仓稳料装置图纸是了解和设计煤仓稳料装置的重要依据。通过学习图纸,我们可以更好地理解装置的工作原理,为实际操作和维护提供指导。所以,下次当你看到这些图纸时,不妨试着解读或许会有意想不到的收获哦!